

Es Galliner como asociación Gastronómica afrontaba en 2020 un duro revés derivado de la pandemia del COVID que hizo relentizar y paralizar su fuerte crecimiento en actividades y Jornadas cuando se cumplía su X Anivesario de historia – y que planteó la necesidad a sus miembros de afrontar la posibilidad de re-ubicar la Asociación más allá de la que era la sede historica oficial hasta la fecha , nuestra querida Sa Fonseca apoyada siempre por la familia Guall de Torrella.
La Directiva y todos los Gallos miembros entraron en un importante debate durante el ejercicio 2021 que repercutía en el devenir de esta Asociación ¿Hacia donde vamos? ¿Que compromiso queremos? … y que culminó con la negociación de este local en pleno corazón de Palma , alojado en las cercanías de uno de los mayores mercados gastronomico de la ciudad de Palma – Mercat de L’Olivar .
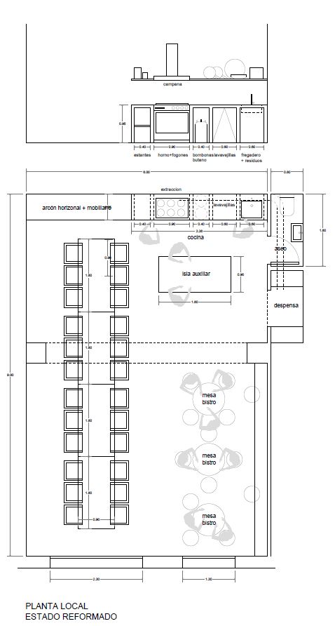
Sant Felip Neri 4- es un local diafano de una posesió mallorquina tradicional, que posee el caracter sobrio y elegante de nuestra asociación. Lo que fuera un almacen de Patató de Muro , donde su propietario , un payés mallorquín negociaba con sus productos frescos de la tierra lo utilizaba de deposito previo a su mercadeo en el Olivar. Productos de Muro , gastronomina de la isla que se identifican con nuestro objeto social como asociación y que su propietario confío en nosotros para su herencia como actividad a la sociedad Mallorquina.
La nueva sede de Es Galliner se firma en Mayo de 2021 con un alquiler de 7 años que permite a sus Gallos invertir en el mismo con toda la ilusión y encara una reforma de 8 meses donde unos cuantos Gallos de manera altruistas lideran este proyecto siempre apoyados por el resto de la Asociación.






La Nueva Sede oficial de Es Galliner se estrena en Noviembre del 2021 con una Jornada especial y emotiva bajo el mando en los fogones de Eduardo Gimenez y de Luis de La Fuente quienes apoyados y secundados en cocina con David,Diego y otros gallos que colaboraron pudieron dar estreno oficial a esta nuestra nueva sede. LARGA VIDA A ES GALLINER !
Noviembre del 2021 será para siempre una fecha importante en nuestra corta historia de Asociación donde tras sus 11 años de vida ponía por fín una ubicación fija para su futuro como referente gastronomico en el día de mañana de la ciudad de Palma y de las tradiciones gastronómicas baleares .


